Peru’s proposed TIF district isn’t final yet – it’s getting close – but Mayor Ken Kolowski said there is already burgeoning corporate interest in seeing the TIF created.
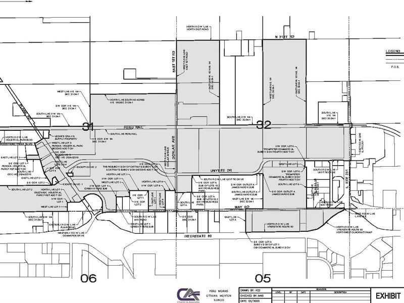
Monday, the city held a public hearing on the proposed Peru Midwest Industrial Nexus Tax Increment Financing (TIF) District Redevelopment Project Area, Plan and Projects. The area in question is generally located north of May Road.
The hearing completes the 10th of 11 required steps. A potentially binding vote is scheduled July 28.
There were no objectors at the Monday hearing.
Within the district are 42 vacant and improved parcels. Roughly four in five of the parcels qualify as “blighted” under the TIF Act.
The parcels are sprawling but mostly lie between Interstate 80 to the south and North 31st Road to the north, and Route 251 to the east and the Bureau County line to the west.
According to documents on file with the city clerk’s office, Eakas Corp. is among the businesses interested in expanding if the TIF is finalized.
Jeff Wagner, vice-president, said Eakas is contemplating a $50 million investment, of which $32 million would fund an addition and create 80 jobs.
“Therefore, please be advised that we are prepared to undertake this project as currently proposed if the City of Peru will proceed with negotiating a development agreement with our company,” Wagner said, “and continue with its best good-faith efforts to include the above-described property in the proposed TIF district.”
James Hardie also voiced support for the TIF in a July 11 letter encouraging council action.

:quality(70)/s3.amazonaws.com/arc-authors/shawmedia/638ad18c-1176-4018-bcef-b5560cf36d58.png)